Z941H電動法蘭閘閥
產品概況
產品型號:Z941H
公稱通徑:NPS 2"~48" DN40~1200mm
壓力范圍:CL150~2500 PN10~420MPa
工作溫度:-29℃~+600℃
主體材質:碳鋼、不銹鋼、合金鋼
設計規范:GB/T 12234
結構長度:GB/T 12221
連接法蘭:JB/T 79
試驗與檢驗:JB/T 9092
壓力-溫度:GB/T 9131
產品標識:GB/T 12220
百鋼閥門集團生產銷售的Z941H電動法蘭閘閥廣泛適用于石油化工,火力發電廠等油品、水蒸氣管路上作接通或截斷管路中介質的啟閉裝置。
Z941H電動法蘭閘閥特點
(1)流動阻力小。閥體內部介質通道是直通的,介質成直線流動,流動阻力小。
(2)啟閉時較省力。是與截止閥相比而言,因為無論是開或閉,閘板運動方向均與介質流動方 向相垂直。
(3)高度大,啟閉時間長。閘板的啟閉行程較大,降是通過螺桿進行的。
(4)水錘現象不易產生。原因是關閉時間長。
(5)介質可向兩側任意方向流動,易于安裝。閘閥通道兩側是對稱的。
(6)結構長度(系殼體兩連接端面之間的距離)較小。
(7)密封面易磨損,影響使用壽命。啟閉時,閘板與閥座兩個密封面相互摩擦滑動,要介質壓力作用下易產生擦傷磨損,影響密封性能,縮短使用壽命。
(8)價格較貴。接觸密封面較多,加工較復雜,特別是閘板座上的密封面不易加工,而且零件較多。
(9)形體簡單 , 結構長度短,制造工藝性好,適用范圍廣。
(10)結構緊湊,閥門剛性好,通道流暢,流阻數小,密封面采用不銹鋼和硬質合金,使用壽命長,采用PTFE填料,密封可靠,操作輕便靈活。
Z941H電動法蘭閘閥特點-性能規范
|
型號 |
公稱壓力 |
實驗壓力 |
工作溫度(℃) |
適用介質 |
||
|
強度水(MPa) |
密封(水)空氣(MPa) |
低壓密封空氣(MPa) |
||||
|
Z41H-16C |
1.6 |
2.4 |
1.8 |
0.6 |
≤425 |
硝酸類 |
|
Z41W-25P(R) |
2.5 |
3.8 |
2.8 |
0.6 |
≤200 |
醋酸類 |
|
Z41W-40P(R) |
4.0 |
6.0 |
4.4 |
0.6 |
≤200 |
硝酸類 |
|
Z41W-64P(R) |
6.4 |
9.6 |
7.0 |
0.6 |
≤200 |
醋酸類 |
Z941H電動法蘭閘閥特點-主要零件材質
|
閥體/閥蓋 |
ZGICr18Ni9Ti |
ZG00Cr18Ni10 |
ZG1Cr18Ni12M02Ti |
ZG00Cr17Ni14M02 |
WCB |
|
零件名稱 |
ZGICr18Ni9Tit系列 |
ZG00Cr18Ni10系列 |
ZG1Cr18Ni12M02Ti系列 |
ZG00Cr17Ni14M02系列 |
WCB系列 |
|
閘板 |
ZGICr18Ni9Ti |
ZG00Cr18Ni10 |
ZG1Cr18Ni12M02Ti |
ZG00Cr17Ni14M02 |
1Cr13 |
|
閥桿 |
1Cr18Ni9Ti |
00Cr18Ni10 |
1Cr18Ni12M02Ti |
00Cr17Ni14M02 |
1Cr13 |
|
填料 |
PTFE編織 |
PTFE編織 |
PTFE編織 |
PTFE編織 |
石墨 |
|
墊片 |
304L+PTFE |
304L+PTFE |
316+PTFE |
316L+PTFE |
石墨 |
|
壓蓋 |
ZGICr18Ni9Ti |
ZG00Cr18Ni10 |
ZG1Cr18Ni12M02Ti |
ZG00Cr17Ni14M02系列 |
WCB |
|
填料壓環 |
1Cr18Ni9Ti |
00Cr18Ni10 |
1Cr18Ni12M02Ti |
00Cr17Ni14M02 |
1Cr13 |
|
螺栓 |
1Cr17Ni2 |
1Cr17Ni2 |
1Cr17Ni2 |
1Cr17Ni2 |
35CrMoA |
|
螺母 |
1Cr18Ni9Ti |
1Cr18Ni9Ti |
1Cr18Ni9Ti |
1Cr18Ni9Ti |
45 |
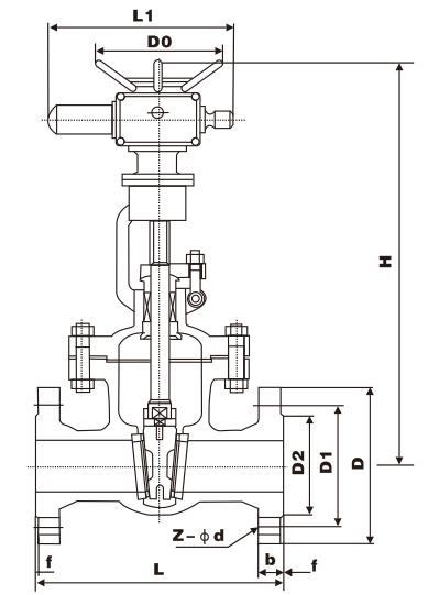
Z941H電動法蘭閘閥特點主要外形尺寸及重量

|
公稱壓力 PN(MPa) |
通徑 DN(mm) |
L | D | D1 | D2 | b | Z-ød | D3 | H | H1 | D0 |
重量 (kg) |
| 1.6 | 40 | 240 | 150 | 110 | 88 | 20 | 4-ø17.5 | 164 | 602 | 602 | 300 | 68 |
| 50 | 250 | 165 | 125 | 102 | 20 | 4-ø17.5 | 164 | 610 | 610 | 300 | 69 | |
| 65 | 270 | 185 | 145 | 122 | 20 | 4-ø17.5 | 164 | 612 | 612 | 300 | 80 | |
| 80 | 280 | 200 | 160 | 133 | 20 | 8-ø17.5 | 195 | 690 | 690 | 300 | 83 | |
| 100 | 300 | 220 | 180 | 158 | 20 | 8-ø17.5 | 220 | 833 | 833 | 300 | 94 | |
| 125 | 325 | 250 | 210 | 184 | 22 | 8-ø17.5 | 268 | 867 | 876 | 300 | 125 | |
| 150 | 350 | 285 | 240 | 212 | 24 | 8-ø22 | 280 | 958 | 958 | 300 | 160 | |
| 200 | 400 | 340 | 295 | 268 | 26 | 12-ø22 | 370 | 1096 | 1096 | 300 | 225 | |
| 250 | 450 | 405 | 355 | 320 | 30 | 12-ø26 | 460 | 1244 | 1244 | 300 | 348 | |
| 300 | 500 | 460 | 410 | 370 | 30 | 12-ø26 | 530 | 1430 | 1474 | 400 | 485 | |
| 350 | 550 | 520 | 470 | 430 | 34 | 16-ø26 | 610 | 1565 | 1663 | 400 | 696 | |
| 400 | 600 | 580 | 525 | 482 | 36 | 16-ø30 | 710 | 1735 | 1886 | 400 | 1000 | |
| 500 | 700 | 715 | 650 | 585 | 44 | 20-ø33 | 5860 | 1961 | 2181 | 400 | 1064 |
溫馨提示:
本文中所有文字、數據、圖片均只適用于參考。需要查看更多的Z941H電動法蘭閘閥性能參數、結構尺寸參數、價格等詳情,或要求高質量印刷樣本,請聯系我們。